【项目简介】固镇县2020年度老旧小区整治改造工程
一、基本情况
2020年,共实施老旧小区改造6个,分别为清怡雅阁苑、世纪家园、世纪荣誉、西湖山庄、智诚苑和农资生活小区,总投资约2500万元,涉及改造面积25.43万平方米,78栋,住户2304户。
二、改造内容
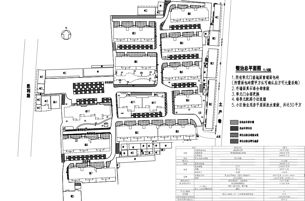
严格按照省、市关于老旧小区整治改造标准对各个小区进行整治改造,改造内容包括:外立面粉刷、楼道粉刷、道路修整、雨污分流、强弱电整治、绿化环境改造、围墙新建及修缮、增加停车位、增设监控系统、增设充电桩、水电气量表出户、屋面修缮、增设车棚、增设路灯、增设垃圾桶等
2020年度老旧小区改造于7月份完成项目招标和合同签订工作,7月下旬正式开工建设,11月份竣工,12月份全面完成老旧小区整治改造综合验收。

扫一扫在手机打开当前页

皖公网安备 34030002000001号